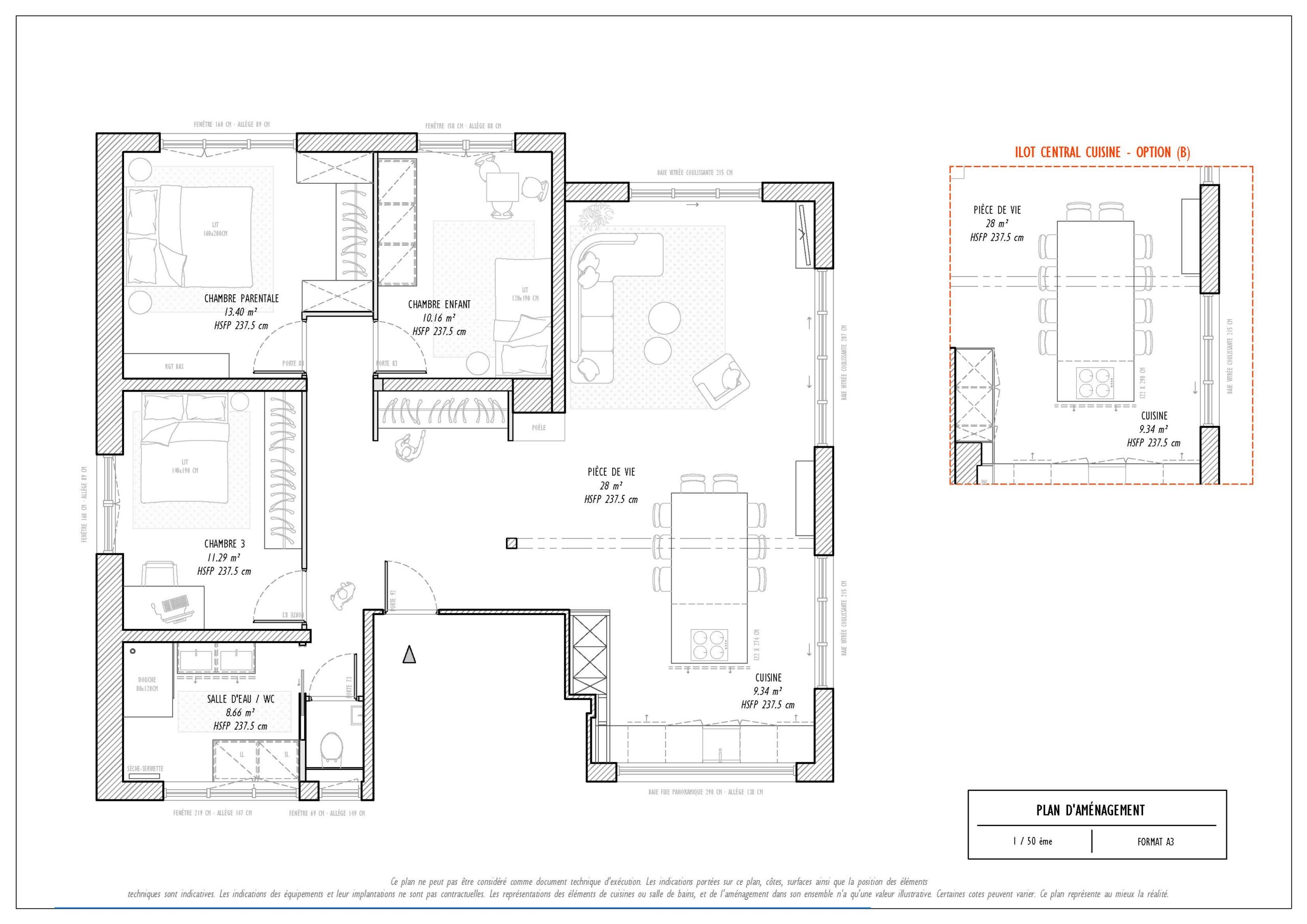
Pour ce projet situé sur les hauteurs de Chambéry, j’ai accompagné mes clients dans la réflexion et l’agencement global des espaces, en amont de la conception de la cuisine intégrée.
Optimiser les volumes et faciliter le travail des artisans en définissant précisément les aménagements avant le démarrage du chantier.
Cette préparation a également permis aux clients, qui géraient la rénovation en auto-gestion, de réaliser leurs chiffrages et commandes de matériaux en toute sérénité.
Notre site utilise des cookies pour garantir son bon fonctionnement et optimiser ses performances techniques, personnaliser l'affichage de nos pages ou diffuser et mesurer des publicités pertinentes. Pour plus d'informations ou pour gérer vos préférences, cliquer sur le bouton "Voir les préférences"